Trainiert mit über 500.000 annotierten Fassadenbildern, liefert automatisch präzise Flächenangaben zu Fenstern, Türen und Materialien – direkt aus dem Scan. Unsere KI-Technologie erfasst Bauteile mit 99 % Genauigkeit und erstellt detaillierte Massenlisten. Diese exakten Daten sind sofort einsatzbereit für ERP-, CAFM- und Managementsysteme, inklusive SAP-Schnittstelle.
Sie bieten eine verlässliche Grundlage, um Gebäude effizient zu analysieren, zu modernisieren und zu optimieren. Ergänzt durch Wärmebildanalysen können Wärmebrücken präzise lokalisiert und gezielte Energieeinsparungen erzielt werden.
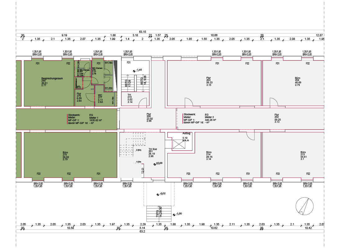
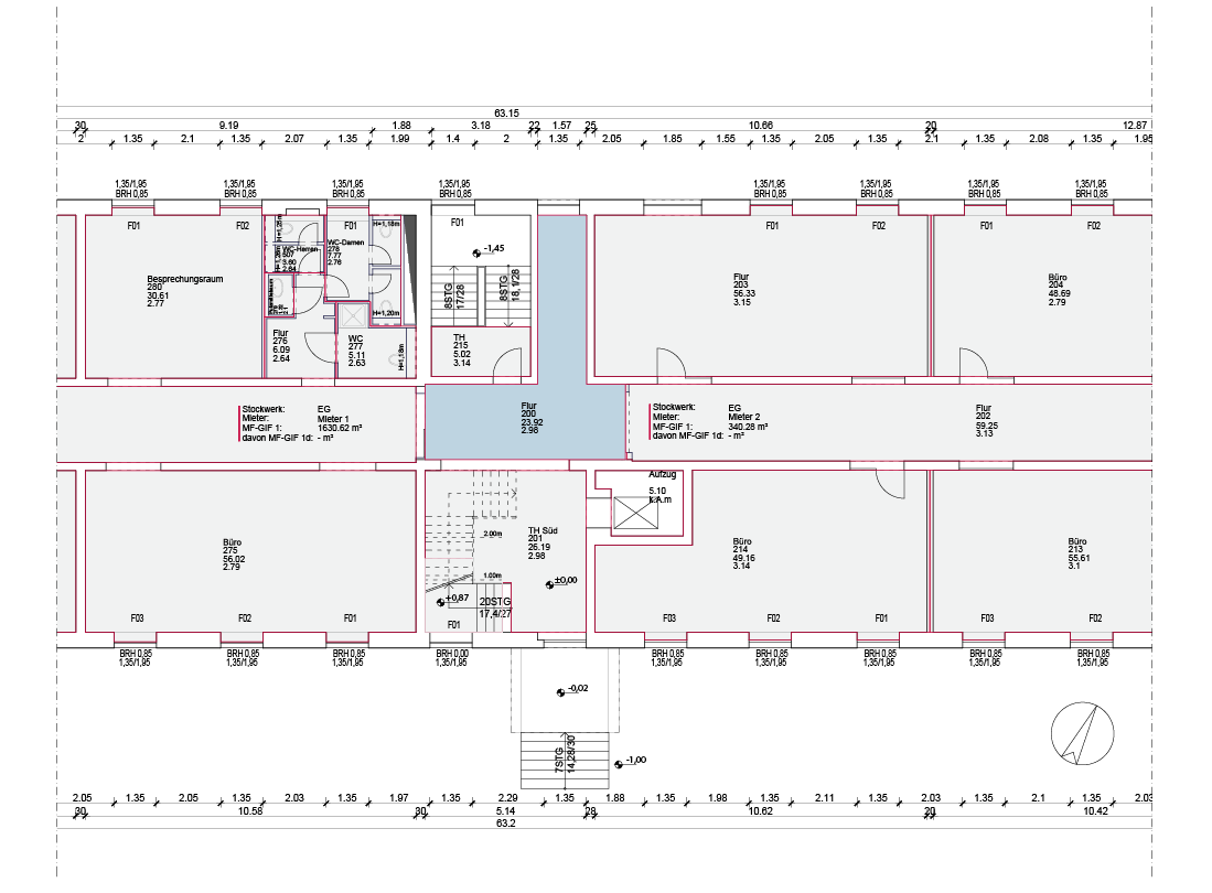
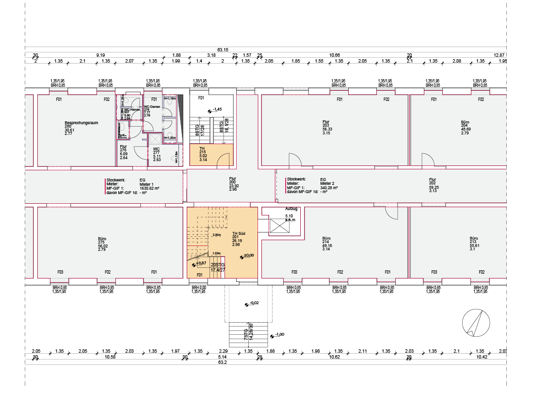
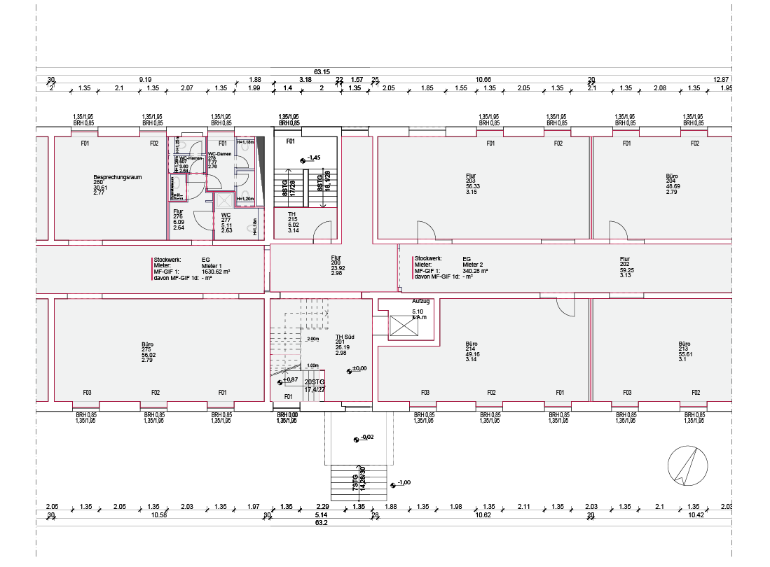
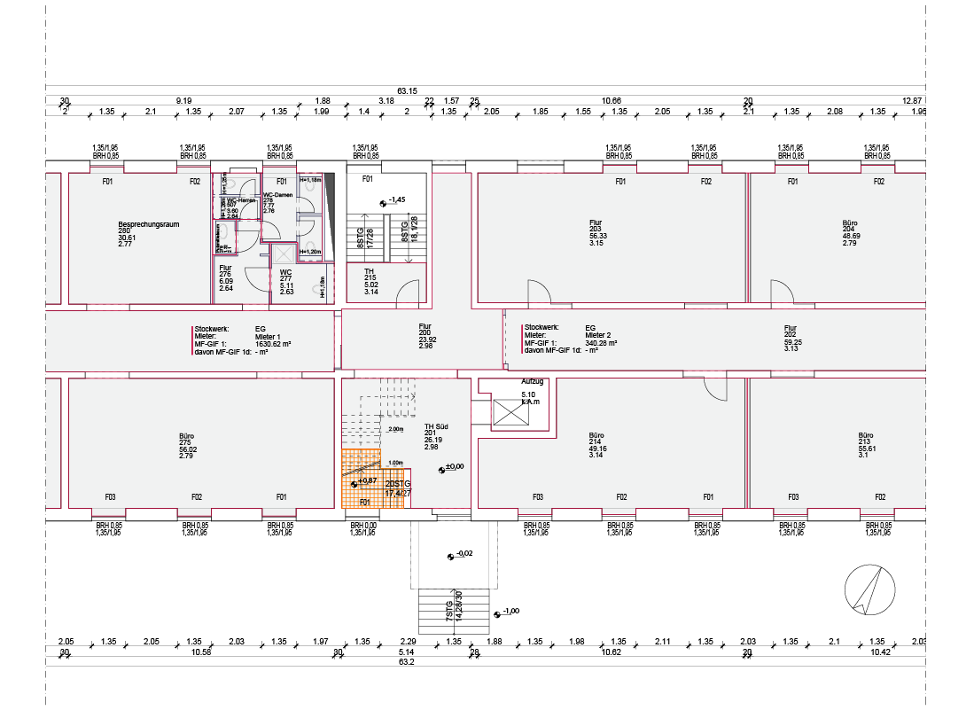
Hier ist ein interaktives Beispielergebnis aus der Aufnahme – genauso detaillierte Daten können Sie auch für Ihre Immobilien erhalten:
Klicken Sie sich durch!
.png)

.png)

.png)
.png)

.png)
.png)

Dann lassen Sie sich kostenfrei beraten und erfahren Sie, wie wir Sie bei Ihrem Projekt unterstützen können!
Exakte Flächenberechnungen für Wirtschaftlichkeit, Planung und Abrechnung. Die präzise Ermittlung von Flächen nach DIN 277, BGF, GIF und Wohnflächenverordnung (WoFlV) ist essenziell für die korrekte Besteuerung, Wertermittlung, Betriebskostenabrechnung und Nutzungskonzepte. Sie bildet die Grundlage für Grundsteuerberechnungen, Ausschreibungen, Energieausweise, Mietspiegelbewertungen und Flächenmanagement in ERP-Systemen wie SAP oder Wodis.
Architekten, Ingenieure und Facility-Manager profitieren von der hohen Detailgenauigkeit, die eine effizientere Kommunikation und Zusammenarbeit gewährleistet. Durch die Reduzierung von Fehlern und Optimierung von Abläufen sparen 3D-BIM-Modelle Zeit und Kosten und bieten eine zukunftsweisende Lösung für das Gebäudemanagement.








Das digitale Raumbuch von Voxelgrid erfasst und strukturiert alle relevanten Raumdaten automatisch – von Bodenbelägen, Raumnummern und Nutzungsarten bis hin zu Fenstergrößen, Barrierefreiheitsmerkmalen und mietspiegelrelevanten Attributen. Die integrierte automatisierte DIN 277-Auswertung sorgt für eine präzise
Flächenberechnung und Klassifizierung nach Nutzungsarten. Dank nahtloser Anbindung an Wodis, SAP und andere Systeme lassen sich die Daten direkt importieren, aktualisieren und für Verwaltung, Planung und Abrechnung nutzen – schnell, präzise und ohne manuellen Aufwand.
Präzise Flächenermittlung für maximale Effizienz, nachhaltige Optimierung und geringere Betriebskosten.
Gezielte Erkennung von Energieverlusten für nachhaltige Optimierungen.
Exakte Flächenangaben für effizientere Planung und Kostenersparnis.
Automatisierte, kostengünstige Datenerfassung ohne manuelle Arbeit.
Erfahren Sie mehr zu unseren 2D-Digitalisierungs Produkten und sehen Sie sich Referenzprojekte an!
Jetzt unverbindlichen Termin vereinbaren
Die KI-gestützte Mengenermittlung nutzt maschinelles Lernen zur automatisierten Analyse von Bauwerksdaten, um präzise Mengen- und Flächenberechnungen zu erstellen. Dies spart Zeit, reduziert Fehler und liefert eine fundierte Basis für Bau- und Sanierungsprojekte.
Voxelgrid setzt auf Deep-Learning-Algorithmen, die auf Grundlage umfangreicher Trainingsdaten automatisch bauliche Strukturen und Materialien erkennen. Dadurch lassen sich Flächen und Volumina exakt bestimmen und normgerechte Berechnungen durchführen.
Durch exakte Flächen- und Materialberechnungen können energetische Schwachstellen identifiziert und gezielt Maßnahmen zur Optimierung umgesetzt werden. Dies trägt dazu bei, Energieverbrauch und Betriebskosten nachhaltig zu senken.
Im Vergleich zu manuellen Berechnungen bietet die KI-gestützte Methode eine höhere Genauigkeit und Geschwindigkeit. Sie minimiert das Risiko von Fehleinschätzungen und sorgt für eine transparente, datenbasierte Entscheidungsgrundlage in der Bauplanung.
Die Berechnungen orientieren sich an gängigen Normen wie der DIN 277, der Bruttogrundfläche (BGF), den GIF-Richtlinien für Gewerbeimmobilien und der Wohnflächenverordnung (WoFlV). Dies gewährleistet standardisierte und rechtssichere Flächenauswertungen.
Die berechneten Mengen- und Flächendaten können in verschiedene Planungs- und Bausoftware, wie CAD- oder BIM-Systeme, integriert werden. Dadurch lassen sich Bauprojekte digital verwalten und effizient koordinieren.