
Kunde
Service
Im Rahmen der Digitalisierung der historischen Liegenschaften der Stiftung Preußische Schlösser und Gärten Berlin-Brandenburg haben wir eine Testvermessung des Kavaliershauses auf der berühmten Pfaueninsel durchgeführt. Diese UNESCO-Welterbestätte, zu der Sie hier detaillierte Informationen finden, ist Teil eines umfassenden Digitalisierungsprojektes, das den Erhalt und die langfristige Pflege des preußischen Kulturerbes unterstützt.
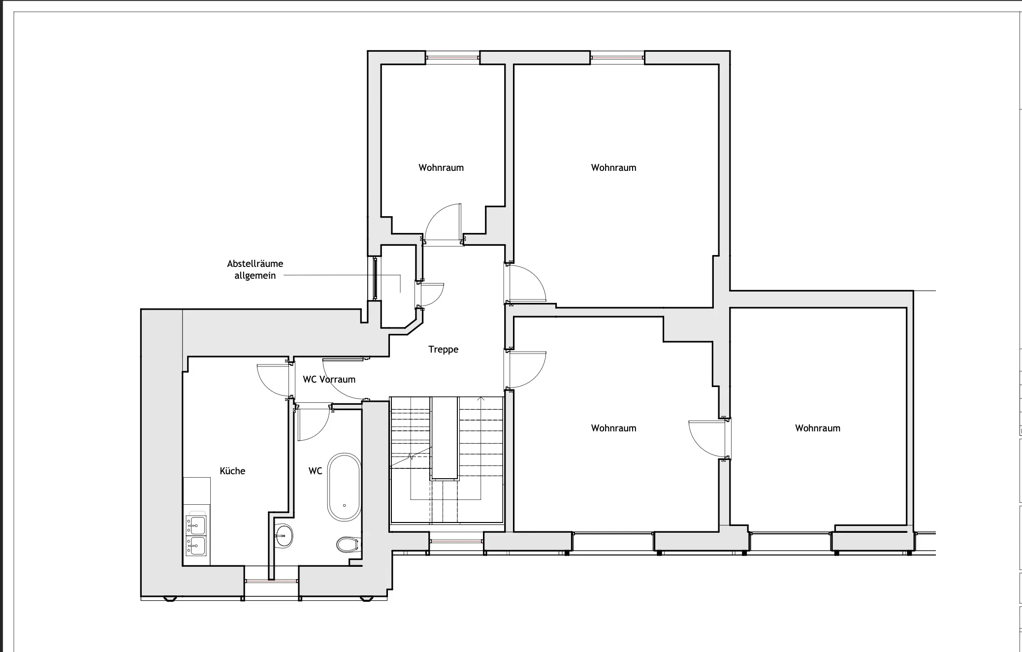
Mit unseren Technologien haben wir eine präzise Punktwolke des Kavalierhauses erstellt. Mit den daraus gewonnenen Daten wurden anschließend detaillierte 2D CAD-Pläne und 3D-BIM-Modelle erstellt, die sowohl für die Instandhaltung als auch für zukünftige Planungen genutzt werden können. Mit den erstellten 3D-BIM-Modellen wird es der Stiftung ermöglicht, effiziente Facility-Management-Prozesse zu implementieren und das Instandhaltungsbudget genauer zu planen.
Die Digitalisierung der Bestände trägt nicht nur zur Dokumentation bei, sondern bietet auch die Möglichkeit, Ressourcen nachhaltiger zu bewirtschaften und das kulturelle Erbe digital zu erhalten. Mit den Modellen können die Verantwortlichen auf umfassende Informationen zugreifen, ohne vor Ort sein zu müssen. Dadurch werden Instandhaltungsprozesse optimiert und die Verwaltung der Liegenschaften erheblich erleichtert.

